
賃料 |
19.4万円 |
共益費/管理費 |
20,000円 |
---|---|---|---|
物件名 |
LUXENA+PAWS藤沢 |
号室 |
206 |
タイプ |
マンション |
西暦築年月 |
2026/02(建築予定) |
間取り |
3LDK |
面積 |
61.31m²(18.54坪) |
建物構造 |
鉄筋コンクリート造 |
階/階建 |
2階/7階建 |
住所 |
藤沢市弥勒寺1丁目6-1 |
||
交通 |
藤沢駅まで 徒歩13分 |
お電話でのお問い合わせ
物件コード:AA10601M206
お電話でお問い合わせの際は、物件コードをお伝えください。
0466-53-7181
営業時間:AM10:00 - PM 5:00
定休日:火曜日・水曜日
ポイント
POINT
◆設備充実、ペットと暮らせるハイグレード新築マンション!ドッグラン、トリミングルーム付きです♪
◆藤沢駅かららくらく平坦通勤可能。≪周辺情報≫【藤沢駅】徒歩13分 バス6分「川名橋」(280m) 【大船駅】バス23分「弥勒寺」(550m) 【スーパー】そうてつローゼン(750m)、オーケーストア(550m) 【コンビニ】セブンイレブン(210m) 【ドラッグストア】ヒノミドラッグ(550m) 【学校】村岡小学校(180m)、村岡中学校(450m)、村岡保育園(400m) 【公園】弥勒寺第二公園(240m) 【病院】藤沢ホスピタリティパーク(400m)、のぞみホームクリニック(550m)
もっと詳しい弥勒寺1丁目の周辺情報は→こちら
◆藤沢駅かららくらく平坦通勤可能。≪周辺情報≫【藤沢駅】徒歩13分 バス6分「川名橋」(280m) 【大船駅】バス23分「弥勒寺」(550m) 【スーパー】そうてつローゼン(750m)、オーケーストア(550m) 【コンビニ】セブンイレブン(210m) 【ドラッグストア】ヒノミドラッグ(550m) 【学校】村岡小学校(180m)、村岡中学校(450m)、村岡保育園(400m) 【公園】弥勒寺第二公園(240m) 【病院】藤沢ホスピタリティパーク(400m)、のぞみホームクリニック(550m)
もっと詳しい弥勒寺1丁目の周辺情報は→こちら
物件詳細DETAIL
敷金 |
- |
礼金 |
- |
---|---|---|---|
保険 |
要 21,500円 2年 |
諸費用 |
鍵設定 11,000円
ペット審査費用 5,500円
退居時クリーニング代 94,600円 |
フリーレント |
仲介手数料 |
1ヶ月 |
|
入居費用(概算) |
560,000円 |
めやす賃料 |
|
月払い諸費用 |
保証料1% |
||
保証会社 |
必須 エポスカード
初回50%、月1% |
||
契約期間 |
2年 |
||
更新 |
可 |
更新料 |
新賃料の1ヶ月分 |
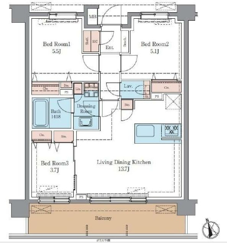
間取詳細 |
LDK13.7、洋5.5、洋5.1、洋3.7 |
方向 |
南 |
現況 |
未完成 |
引渡時期 |
2026/03 上旬 |
駐車場 |
空有 11,000円 |
ペット飼育 |
小型犬/猫4匹 他 |
特色/設備 |
小型犬可、ネコ可、ペット相談、システムキッチン、カウンターキッチン、追焚機能バス、浴室乾燥機、温水洗浄便座、シャンプードレッサー、都市ガス、ガスコンロ付、3口以上コンロ、エアコン、インターネット(無料)、オートロック、インターホン(TV)、エレベータ、設備充実、収納充実、宅配ボックス、駐車場(敷地内)、駐輪場(220円)、2階、ロフト、南向き、セキュリティ配慮、日当たり良好、駅かららくらく平坦、藤沢駅バス便、大船駅バス便 |
||
お祝い金(キャッシュバック) |
10,000円 |
取引態様 |
仲介 |
情報更新日 |
2025年10月23日 |
次回更新予定日 |
2025年11月07日 |
※掲載されている物件データが現状と異なる場合は現状を優先します。
周辺地図MAP

湘南村岡不動産株式会社COMPANY
所在地 |
神奈川県藤沢市弥勒寺3-12-16 ミロクジーナC棟2F |
||
---|---|---|---|
免許番号 |
神奈川県知事免許 第(3)28589号 |
||
会員 |
(公社)神奈川県宅地建物取引業協会会員
(公社)全国宅地建物取引業保証協会会員
(公社)首都圏不動産公正取引協議会加盟
|
||
電話番号 |
0466-53-7181 |
FAX番号 |
0466-53-7185 |
営業時間 |
AM10:00 - PM 5:00 |
定休日 |
火曜日・水曜日 |