価格 |
4,880万円 |
||
|---|---|---|---|
間取 |
3LDK+納戸 |
築年月 |
2026/02(1年未満) |
建物面積 |
94.4m²(28.55坪) |
土地面積 |
120.5m²(36.45坪) |
所在地 |
藤沢市大鋸994-2 |
||
交通 |
藤沢駅までバス9分「遊行寺坂上」 停歩4分 |
||
学区 |
大鋸小学校 550m
藤ヶ岡中学校 700m |
お電話でのお問い合わせ
物件コード:BA099402KB
お電話でお問い合わせの際は、物件コードをお伝えください。
0466-53-7181
営業時間:AM10:00~PM5:00
定休日:火・水曜日
ポイント
POINT
◆閑静な住宅地。
◆南西向きひな壇で、陽当たり良好です。≪周辺情報≫【藤沢駅】バス9分「遊行寺坂上」(290m)
【大船駅】バス22分「遊行寺坂上」(230m)
【スーパー】コープ(550m)、ヤオコー(900m)
【コンビニ】セブンイレブン(280m)、ローソン(400m)
【ドラッグストア】クリエイト(650m)
【学校】大鋸小学校(550m)、藤ヶ岡中学校(700m)、柄沢保育園(750m)、ふじがおか幼稚園(550m)
【公園】大鋸丸山公園(350m)
【病院】海部胃腸内科医院(550m)、三宅クリニック(900m)
【その他】大鋸児童館・鋸っ子ランド(450m)、遊行寺(700m)
もっと詳しい大鋸の周辺情報は→こちら
◆南西向きひな壇で、陽当たり良好です。≪周辺情報≫【藤沢駅】バス9分「遊行寺坂上」(290m)
【大船駅】バス22分「遊行寺坂上」(230m)
【スーパー】コープ(550m)、ヤオコー(900m)
【コンビニ】セブンイレブン(280m)、ローソン(400m)
【ドラッグストア】クリエイト(650m)
【学校】大鋸小学校(550m)、藤ヶ岡中学校(700m)、柄沢保育園(750m)、ふじがおか幼稚園(550m)
【公園】大鋸丸山公園(350m)
【病院】海部胃腸内科医院(550m)、三宅クリニック(900m)
【その他】大鋸児童館・鋸っ子ランド(450m)、遊行寺(700m)
もっと詳しい大鋸の周辺情報は→こちら
物件詳細DETAIL
建物構造 |
木造 |
階数 |
2階 |
|---|---|---|---|
間取詳細 |
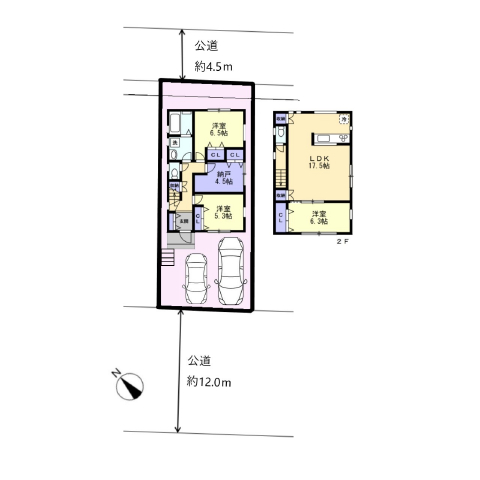
(1F)洋6.5、洋5.3+納戸、(2F)LDK17.5、洋6.3 |
||
地目 |
宅地 |
用途地域 |
第一種低層住居専用地域 |
建ぺい率 |
50% |
容積率 |
80% |
土地権利 |
所有権 |
防火指定 |
法22条区域 |
接道 |
北東 4.5m(幅員) 公道 位置指定無
南西 12m(幅員) 公道 位置指定無 |
地勢 |
ひな段 |
セットバック |
無 |
私道面積 |
- |
特色 |
駐車場2台(車種による)、公営水道、公共本下水、都市ガス |
||
駐車場 |
2台 |
諸費用 |
|
土砂災害警戒区域 |
区域外 |
浸水想定区域 |
区域外 |
現況 |
未完成 |
引渡時期 |
相談 |
情報更新日 |
2026年02月09日 |
取引条件有効期限 |
2026年02月17日 |
次回更新予定日 |
2026年02月12日 |
取引態様 |
仲介 |
※掲載されている物件データが現状と異なる場合は現状を優先します。
周辺地図MAP
ローンシミュレーション
LOAN SIMULATION
- 物件の価格
- 4,880万円
- 月々の返済額
- 円
- ボーナス月
- 円
- 年間の返済額
- 円
- 返済総額
- 円
- 利息合計
- 円
万円
万円
%
年
※毎回の返済額が開始から終了まで均等となる「元利均等返済」で算出しています。
※金利は期間中固定となる固定金利を採用しています。
※月々の返済額は小数点以下を繰り上げしています。
※シミュレーションでの結果は、あくまでも目安で、概算になります。実際にローン契約をする際は、詳細を金融機関にご確認ください。
※実際のローン契約時には諸費用・税金(手数料や印紙税、保証料など)が別途かかりますので、契約の際にご確認ください。
湘南村岡不動産株式会社COMPANY
所在地 |
神奈川県藤沢市弥勒寺3-12-16ミロクジーナC棟2F |
||
|---|---|---|---|
免許番号 |
神奈川県知事免許 第(3)28589号 |
||
会員 |
(公社)神奈川県宅地建物取引業協会会員
(公社)全国宅地建物取引業保証協会会員
(公社)首都圏不動産公正取引協議会加盟
|
||
電話番号 |
0466-53-7181 |
FAX番号 |
0466-53-7185 |
営業時間 |
AM10:00~PM5:00 |
定休日 |
火・水曜日 |
